Leave a Message

Thank you for your message. We will be in touch with you shortly.

See all photos

3600 Tom Miller ST # 2

$980,609 3600 Tom Miller ST # 2, Austin, TX 78723
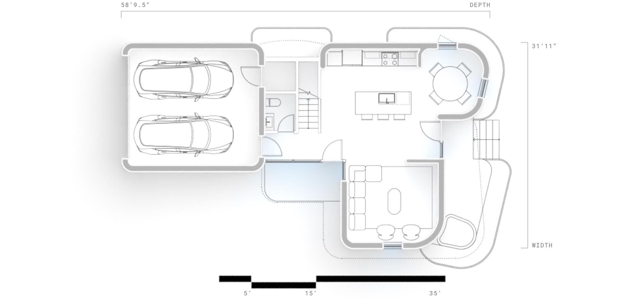
Inquire about preferred lender incentives. ICON's newest 3D-printed homes are coming to Mueller! Designed by renowned Michael Hsu Office of Architecture and overlooking Mueller's Southeast Greenway, these homes are the perfect combination of beautiful design, ICON's resilient construction and an incredible location. This 2-bedroom home features an open-concept layout and modern design. Natural light shapes and enhances the living spaces with floor to ceiling glass facing the private yard, clerestory windows in the living room and oversized windows throughout the rest of the home including views over the Southeast Greenway and Morris Williams Golf Course.

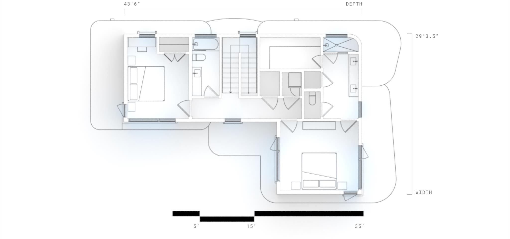
The first floor features an inviting open floor plan with a sleek and modern kitchen, sculptural dining alcove and light-filled living room overlooking a large private yard. Upstairs is the exceptional primary suite with massive windows, a beautiful en-suite bath and an additional bedroom and bathroom.

The home's exquisite finishes blend natural materials and luxury living, including polished concrete floors, quartz countertops, wood flooring, Andersen windows, Bosch appliances and standing seam metal roof. ICON builds high-performance, durable homes using robotic technology and proprietary cementitious-based material. Designed and engineered for precision, speed and resiliency, the innovative technology delivers homes with higher levels of insulation that decreases the home's temperature fluctuations in the summer and winter, and the wall systems are designed to resist water, mold, termites and fire. Conventional construction methods for second story, roofs, windows and doors with elevated finishes are then used to complete the homes.

Located in a coveted section of the Mueller community with expansive views of the Southeast Greenway, the innovative homes will be walking distance to restaurants, shopping, parks and more.
  • For Sale
    Status
  • 2
    Bedrooms
  • 3
    Bathrooms
  • 2025
    Year Built
  • 1,607 Sq.Ft.
    Living Area
image

Schedule a Showing

We would love to show you our beautiful property. Please select your preferred date and time below. An agent will be in touch shortly to confirm your appointment.

Schedule a Showing

We would love to show you our beautiful property. Please select your preferred date and time below. An agent will be in touch shortly to confirm your appointment.
Thank you for your interest in 3600 Tom Miller ST # 2, Austin, TX 78723. We are reviewing your request and will be in touch shortly!

Features & Amenities

Area & Lot

  • Status: For Sale
  • Living Space: 1,607 Sq.Ft.
  • Lot Size: 7,405.2 Sq.Ft.
  • MLS® ID: 2757818
  • Type: Residential
  • Year Built: 2025
  • Neighborhood: Mueller
  • Water Frontage: None
  • View Description: Golf Course, Neighborhood, Park/Greenbelt, Pond
  • Elementary School:Blanton
  • Middle School: Lamar (Austin ISD)
  • High School: Northeast Early College
  • School District: Austin ISD

Interior

  • Total Bedrooms: 2
  • Total Bathrooms: 3
  • Full Bathrooms: 2
  • Half Bathrooms: 1
  • Flooring: Concrete, Tile, Wood
  • Appliances: Dishwasher, Disposal, Gas Range, Microwave, Plumbed For Ice Maker, Free-Standing Range, Free-Standing Gas Range, RNGHD, Stainless Steel Appliance(s), Vented Exhaust Fan, Tankless Water Heater
  • Other Interior Features: High Ceilings, Quartz Counters, Double Vanity, Electric Dryer Hookup, Eat-in Kitchen, Interior Steps, Kitchen Island, Open Floorplan, Walk-In Closet(s), Washer Hookup, Wired for Data

Exterior & Building

  • Stories: 2
  • Garage Space: 2.0
  • Water Source: Public
  • Utilities: Cable Available, Electricity Available, Internet-Cable, Internet-Fiber, Natural Gas Available, Phone Available, Sewer Available, Underground Utilities, Water Available
  • Pool: None
  • Roof: Membrane, Metal
  • Lot Features: Alley Access
  • Parking: Attached, Door-Single, Garage, Garage Faces Rear, Off Street, Side By Side
  • Heat Type: Central
  • Air Conditioning: Central Air
  • Sewer: Public Sewer
  • Substructure: Slab
  • Disability Features: Visitable
  • Other Exterior Features: Uncovered Courtyard, Private Entrance, Private Yard

Financial

  • Sales Price: $980,609
  • Real Estate Tax: $10,769/yr
  • HOA Fees: $103/mo

Mortgage Calculator

Estimate your monthly mortgage payment, including the principal and interest, property taxes, and HOA. Adjust the values to generate a more accurate rate.
All estimates are provided for informational purposes only. Actual amounts may vary.
$0,000 Your Payment 20 15 65
$0,000 Your Payment

3600 Tom Miller ST # 2

Work With Us

Our goal is to earn a customer and friend for life by providing outstanding customer service. At the end of the day for us, it’s not just a transaction but a life-long relationship, a community, and a friendship with the people you meet along the journey.
Contact Us

Follow Us on Instagram